The Lakeview
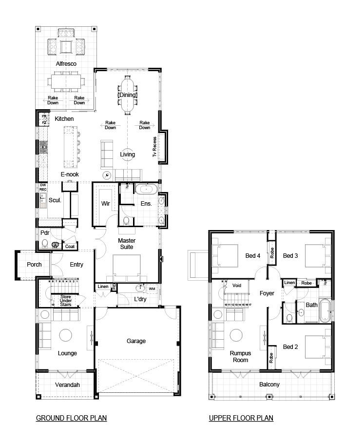
- 4
- 2
- 2
There’s a relaxed elegance to the Lakeview that perfectly sums up the phrase ‘barefoot luxury’. With its tall window shutters, shady verandahs, cooling fans and unfussy detailing, our new showpiece on the edge of Jackadder Lake in Woodlands captures the grace and style of those grand Plantation-style homes of old. Yet the lifestyle is all about now, with big, free-flowing spaces for living indoors and out, four double bedrooms, a rumpus room and versatile second lounge. Perfect for capturing views – lake, sea, or land – the Lakeview offers you the best of both worlds.
















